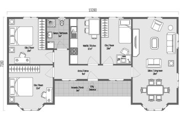
Einstöckiges Stahlhaus

97 m²

  • Saloon 22 m²
  • Bedroom 16 m²
  • Bedroom 10 m²
  • Bedroom 13 m²
  • Kitchen 10 m²
  • Patio 11 m²
  • Patio 10 m²
  • Bathroom 5 m²
  • Bathroom 3 m²
Derzeit sehen 88 Gäste dieses Produkt
Rufen Sie uns an
Meist gesehen