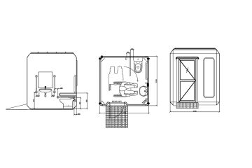
Behindertengerechte Toilette

2150x2150 mm

  • Breite 2150 mm
  • Tiefe 2150 mm
Derzeit sehen 96 Gäste dieses Produkt
Rufen Sie uns an
Meist gesehen