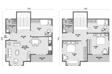
Doppelstöckiges Stahlhaus

124 m²

  • Entrence 10 m²
  • Saloon 37 m²
  • Bedroom 12 m²
  • Bathroom + Bathroom 10 m²
  • Patio 5 m²
  • Entrence 15 m²
  • Bedroom 19 m²
  • Bedroom 10 m²
  • Bedroom 15 m²
  • Balcony 5 m²
Derzeit sehen 94 Gäste dieses Produkt
Rufen Sie uns an
Meist gesehen