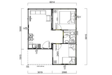
42 m² Containerhaus

6014x6915 mm

  • Schlafzimmer -1 7,5 m²
  • Schlafzimmer -2 7,5 m²
  • Salon 15 m²
  • Wc-Dusche 2,5 m²
  • Hall 2,5 m²
Derzeit sehen 92 Gäste dieses Produkt
Rufen Sie uns an
Meist gesehen